GET IN TOUCH
20 Laycock Street
Carey Bay
ADDRESS
20
Laycock Street, Carey Bay, NSW
2283
no. of lots
22
Lots Sizes
75
m² to
232
m²
property type
Residential Land
COUNCIL
Lake Macquarie City Council
DA approval & finance secured for immediate project launch
Carey Bay sits in a high-growth region with strong housing demand.
Peaceful lakeside living with excellent healthcare access nearby.
Designed to deliver lasting value for residents and
investors alike.
Positioned just minutes
from schools, shopping
& transport
Local Advantages
Planning Overlays
No Flood management overlay detected
No heritage restrictions
Local Advantages
Connectivity
bus stops are within walkING DISTANCE
local main roads connecting to Toronto
reliable NBN internet & mobile coverage
Local Advantages
Education
Toronto Public School
Toronto High School
St Joseph’s CATHOLIC Primary School
Local Advantages
Retail & Shopping
Carey Bay Shopping VILLAGE
Stockland Glendale
projects
Current
Completed
Pipeline
Carmel View
Box Hill
1550 - 1564 Carmel View Box Hill NSW 2765
Land Size
15
property type
318
m² to
421
m²
Building Size
Residential Land
Council
The Hills Shire Council
Saltwater Estate
North Kellyville
17 - 25 Saltwater Estate, North Kellyville, NSW 2155
Land Size
9
No. of Lots
673
m² to
1107
m²
No. of residential houses
Residential Land
council
The Hills Shire Council
39
Chilton
Parade Warwee
39
Chilton Parade, Warrawee NSW
2074
Land Size
1.09
Hectares (
10,900
m²)
property type
7
Luxury Brick Structured Houses
Building Size
533
m²
Council
Ku-ring-gai Council
184 Commercial
Road, Vineyard
184 Commercial Road, Vineyard NSW 2765
no. of lots
39
Lots Sizes
312
m² to
767
m²
property type
Residential Land
council
Hawkesbury City Council
60 Terry Road, Box Hill
60
Terry Road, Box Hill NSW
2765
no. of lots
39
Lots Sizes
281
m² to
500
m²
property type
Residential Land
council
The Hills Shire Council
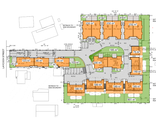
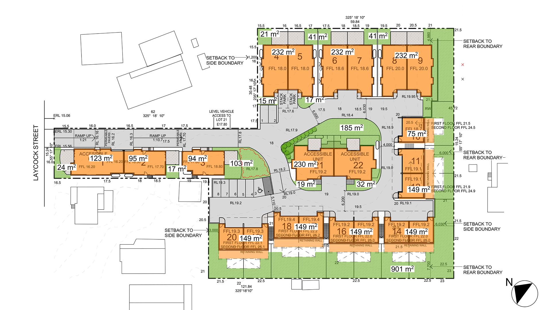
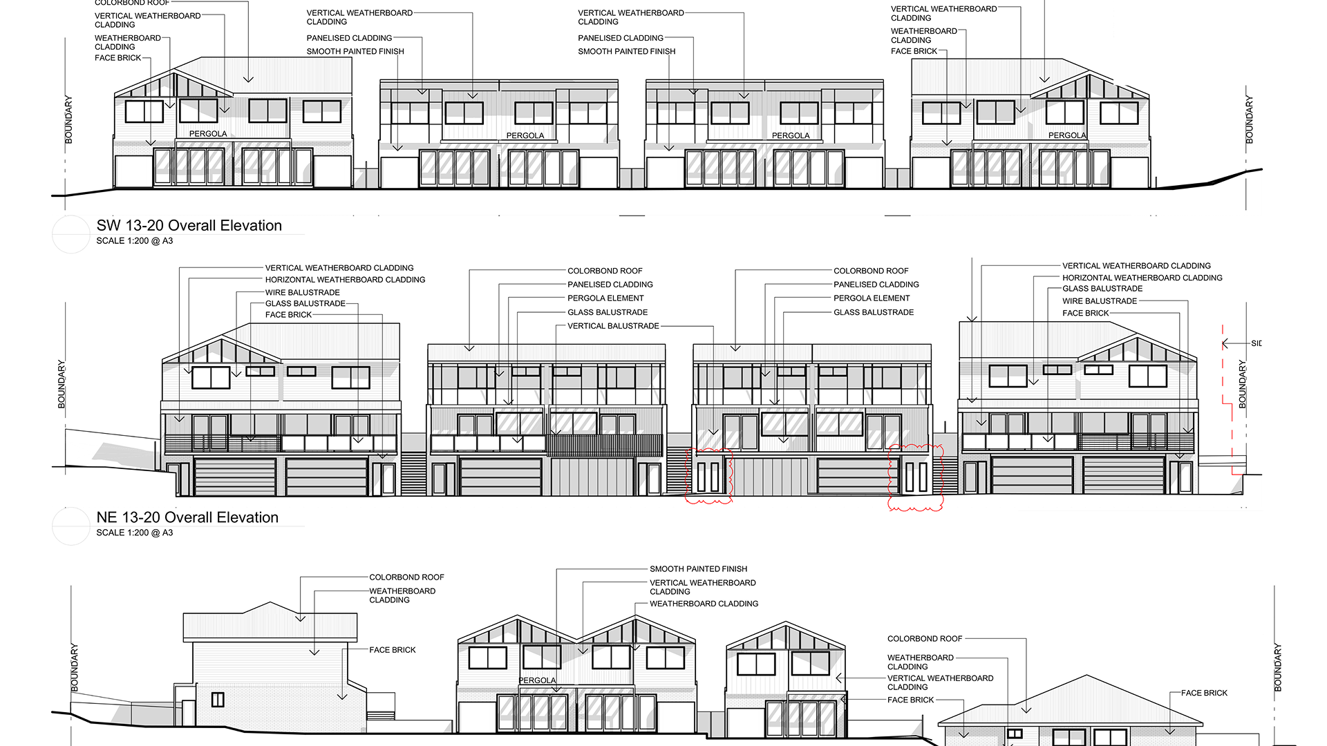
20 Laycock Street
Carey Bay
20 Laycock Street, Carey Bay, NSW 2283
no. of lots
22
Lots Sizes
75
m² to
232
m²
property type
Residential Land
council
Lake Macquarie City Council
210 Grange Avenue, Marsden Park
210 Grange Avenue, Marsden Park NSW 2765
No. of Lots
46
Lots Sizes
246
m² to
275
m²
Property type
Residential Land
council
Blacktown City Council
20 Laycock Street
Carey Bay
20 Laycock Street, Carey Bay, NSW 2283
Lots Sizes
75
m² to
232
m²
property type
Residential Land
council
Lake Macquarie City Council
council
Northern Beaches Council
Luxury House Ingleside
46 Lane Cove Road Ingleside, NSW 2101
Building AREA
1,056.46
m
²
status
Under Construction
council
Northern Beaches Council
council
Northern Beaches Council
GET IN TOUCH